the central space
In 2012, BBKK, a firm devoted to SAP and generic IT Project Management Consultancy, comissioned GASPARBONTA to design a new head office in Budapest.
 
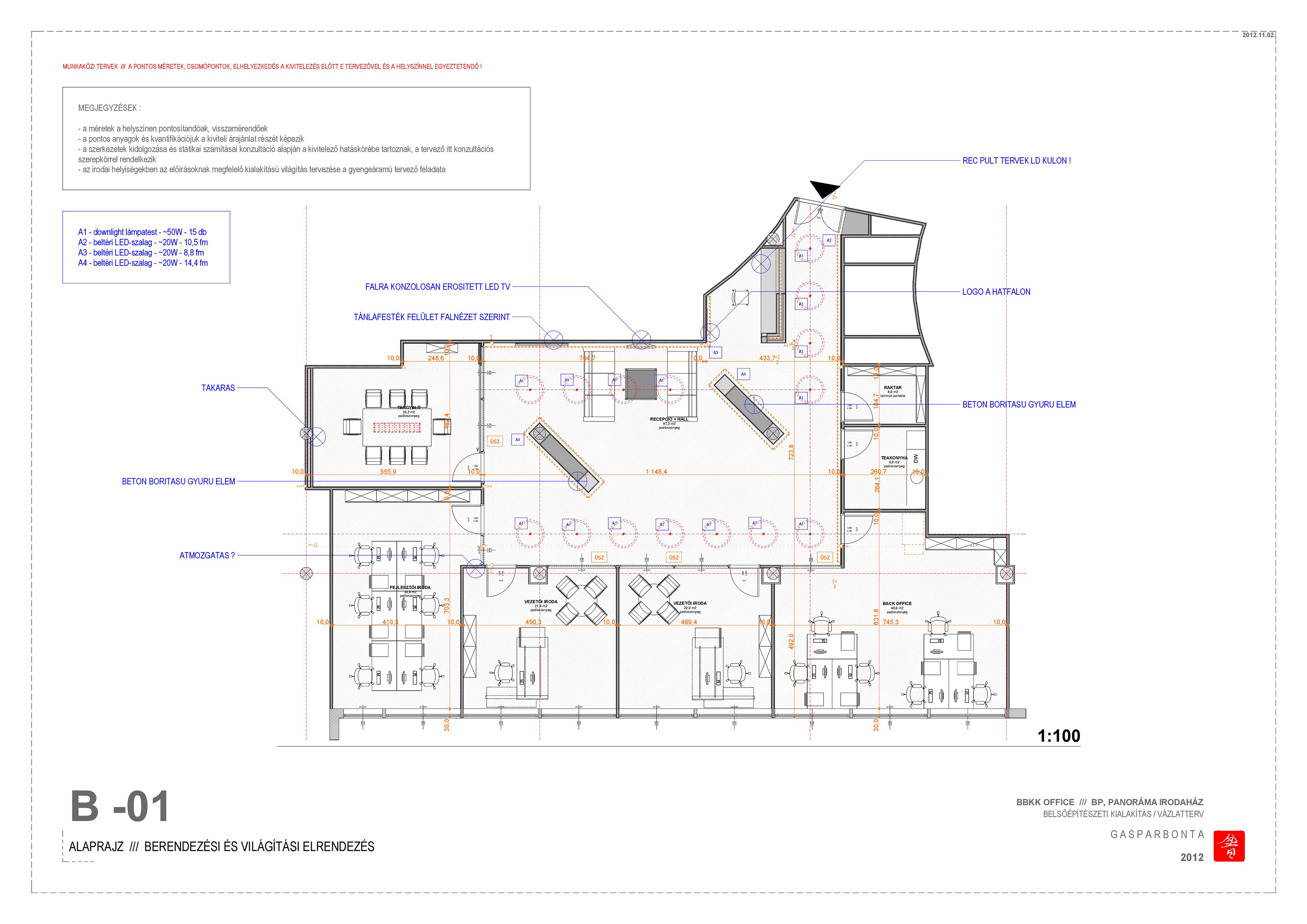
The design supposed to have a big open space in center where the various members of the team can hang out and consult on matters at hand and several smaller offices for more private activities and executive members. The two big concrete rings are unique mixtures of furnitures and sculptures, people actually lay on them with their laptops. The monochromatic 'forest' wallpaper and the paintings on the wall are Gaspar's artworks. 
 
Client : BBKK ( www.bbkk.hu )
Design : GASPARBONTA ( www.gasparbonta.com )
Contractor : ETNA Kft. ( http://www.epites-felujitas.com )
Photos : Gaspar Bonta
 
Year of completion : 2013
 
-
general floor plan
3D section
THE CONCRETE RINGS
THE RECEPTION
INSIGHTS
JOIN US ON FACEBOOK !
 
-
Back to Top